The 2026 International Builders’ Show (IBS) is right around the corner, giving attendees the chance to explore new building products and techniques, attend educational sessions, and catch up with colleagues.
While there’s a lot to see and do throughout the convention center, Pro Builder Show Village, the anchor of the Outdoor Exhibits just outside the West Hall, provides the unique opportunity to explore five model homes that showcase attainability across a range of styles and solutions.


The Jama Tent
Bushtec Safari, a South African manufacturer of luxury tents, is bringing something different to Show Village in 2026 with their Jama tent model. Ideal for resorts and glamping setups, the 452-square-foot tent includes a bedroom, bathroom, kitchen, and outdoor seating area.
While different from the other model homes at Show Village, the Jama tent offers comparable quality. The tent’s roof system is made up of multiple layers for durability and protection from the elements, including UV, water intrusion, thermal transfer, and fire resistance. Additionally, the roof frame is constructed of powder-coated mild steel for added strength, stability, and corrosion resistance.


The Vista
Aptly named for its focus on outdoor views, the Vista model from Cavco offers retreat-like living at an attainable price point. At 400 square feet, the home features a two-story deck and loft that helps to expand the interiors and maximize the home’s connection to the outdoors.
Inside, the cozy interiors are bright and open. Upon entering the home, visitors are greeted by a generous living space and kitchen, while the primary suite is situated at the back of the home for added privacy.


The Bungalow
Part of Cavco Park Models and Cabins’ Bungalow series, this model home demonstrates how efficient and functional design is possible within a small space.
Measuring 399 square feet, the home features a large living room and kitchen, a primary bedroom with a walk-in closet, and a full bathroom. An upstairs loft adds even more space to the efficient floor plan.


The Echelon
Spanning 1,613 square feet, the Echelon model from Cavco-Plant City is contemporary in style with a simple color and material palette intended to span the test of time.
On the inside, the home’s open floor plan seamlessly connects the living room, kitchen, and dining areas. The main area is further extended by a covered outdoor living space.
At the center of the floor plan is a chef-inspired kitchen complete with quartz countertops and professional-grade stainless steel appliances. Meanwhile, the primary suite offers a large bathroom, complete with a walk-in shower, double vanities, and ample storage space.


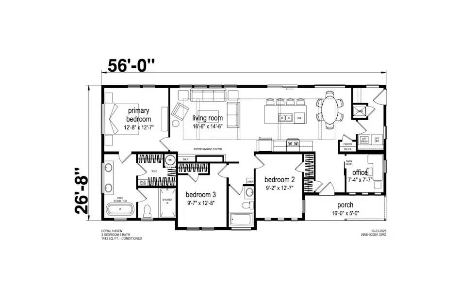
Coral Haven
Champion Homes’ Coral Haven model gives Show Villagers the chance to see quality attainable housing solutions come to life.
Offering a spacious 1,442-square-foot floor plan, Coral Haven can be built as either a HUD-code manufactured home or a CrossMod, giving developers and buyers flexibility to meet a range of community standards and price points.
The contemporary home is designed to suit the tastes of numerous households, as well, with clean architectural lines and warm finishes that are both modern and timeless.
Inside, an open-concept floor plan highlights beamed ceilings, a spacious kitchen island, and natural light throughout the main living areas. The primary suite includes a spa-inspired bathroom, and additional features such as a dedicated laundry area and office space offer flexibility for today’s homeowners.
